Etusivu
Retriittikeskus
Asemakaavan muutos
Vuokramökki
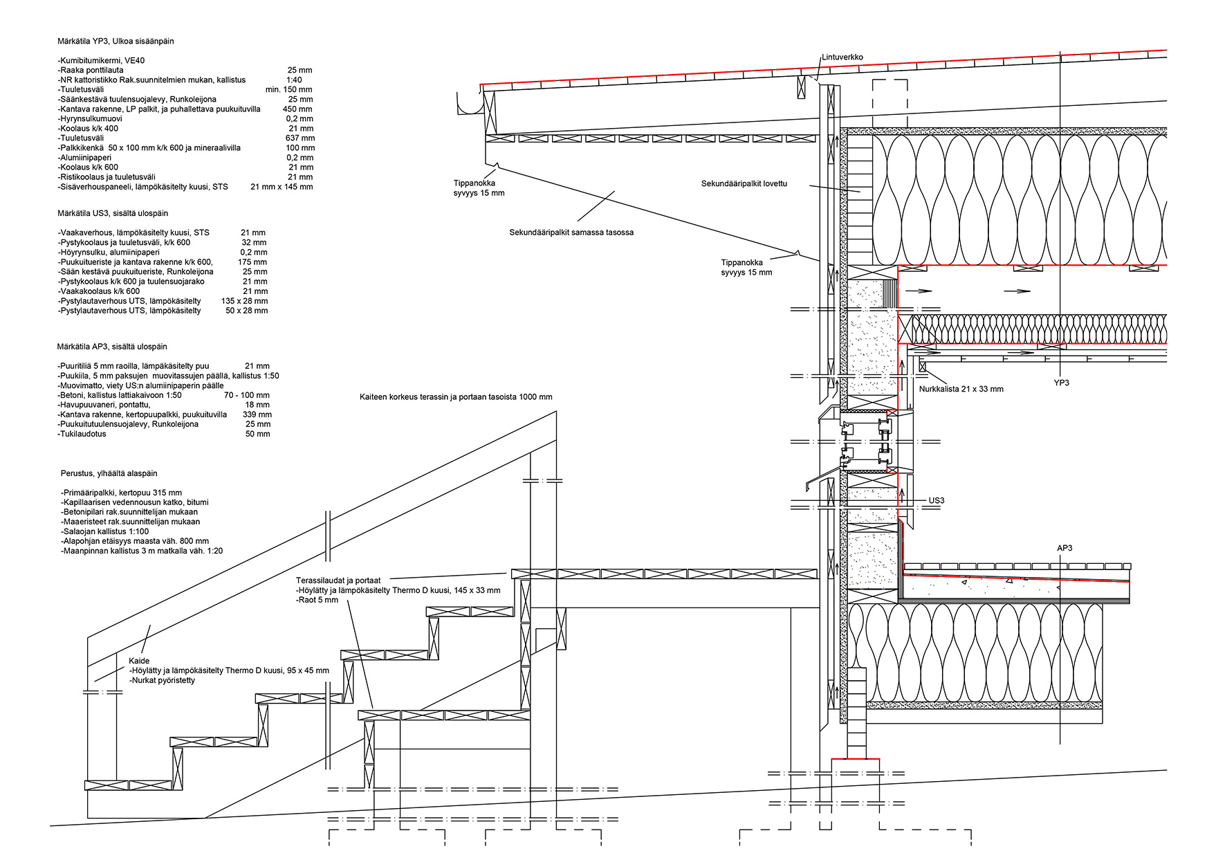
Materiaalitutkimus
Katukuvaus
Ota yhteyttä
Hannu Väisänen Portfolio
Etusivu
Retriittikeskus
Asemakaavan muutos
Vuokramökki
Materiaalitutkimus
Katukuvaus
Ota yhteyttä
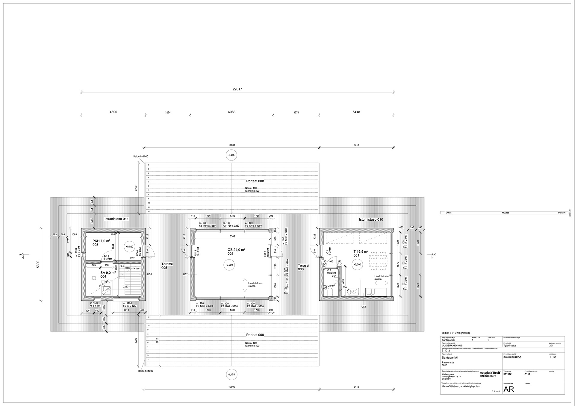
Vuokramökki
Sijainti:
Perämeri, Santapankki-saari
Toiminnot:
Majoittuminen, Observatorio, Sauna
Pinta-ala:
60 k-m2
↑
Alkuun